Edificio in vendita in localita Sant'Egidio s.n.c

Montecassiano (Macerata)

Rif: 21628525
Condividi Linkedin Whatsapp Stampa
€ 149.000
Vendita
Palazzo
424 Mq
Classe energetica G
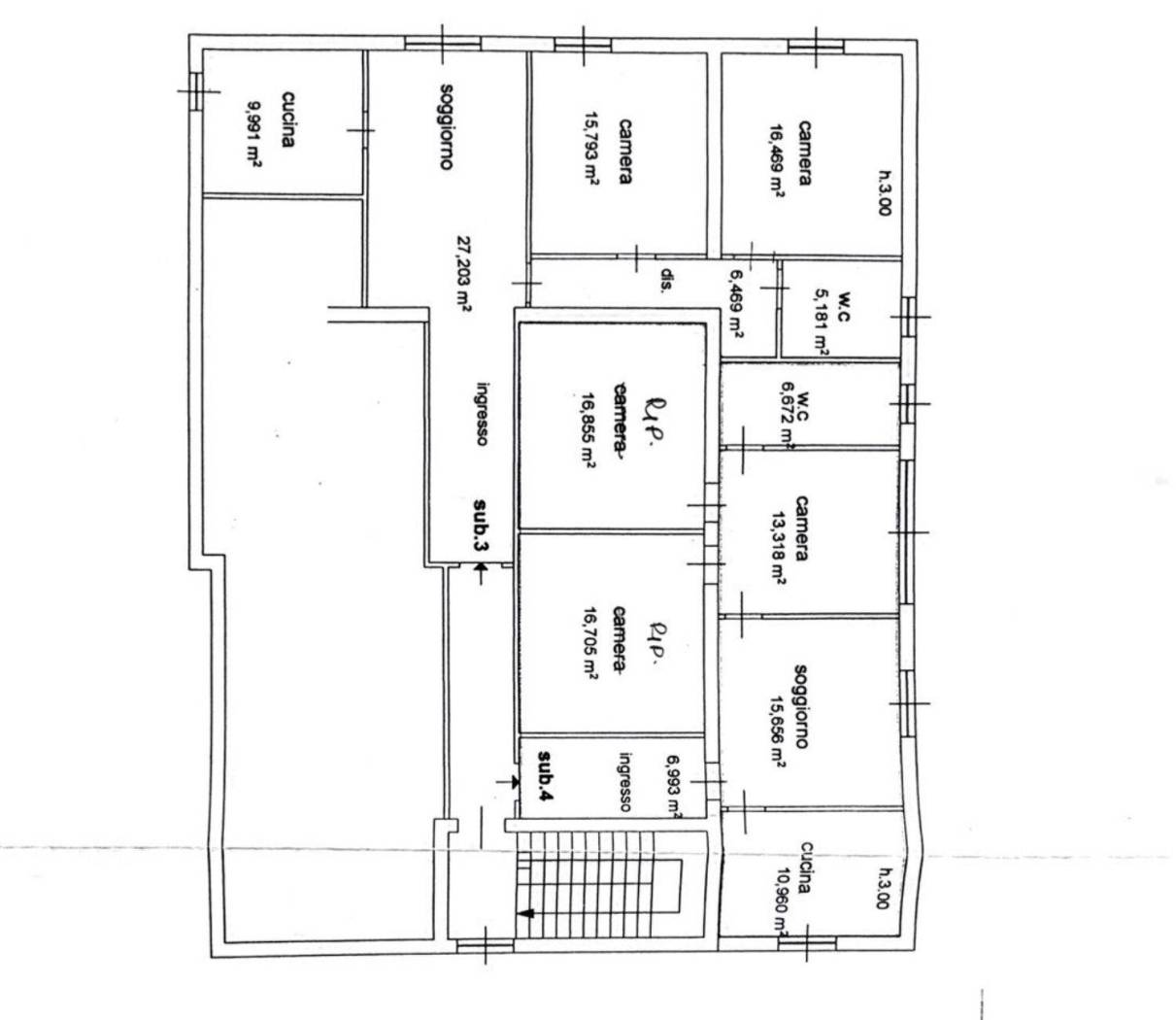
Proponiamo in vendita a Sant'Egidio di Montecassiano, in zona residenziale e vicina ad ogni servizio, porzione di palazzina disposta su tre livelli. La vendita si riferisce alle unità immobiliari del primo e secondo piano per un totale di 5 appartamenti.

APPARTAMENTI - PRIMO PIANO:
1) 63mq composto da cucina, due camere, bagno, ripostiglio e balcone;
2) 82 mq composto da cucina, salone, due camere e bagno;
3) 87 mq composto da cucina, sala, tre camere e bagno.

APPARTAMENTI - SECONDO PIANO:
4) 79 mq composto da cucina, sala, due camere e bagno;
5) 90 mq composto da cucina, sala, due camere, bagno, terrazzo di 78mq.

Attualmente locati. La richiesta per l'intera proprietà è di Euro 149.000 euro. Ideale per investimento. DA VEDERE!SE VUOI SAPERNE DI PIU' CHIAMACI O SCRIVICI AL! SIAMO LIETI DI DARTI TUTTE LE INFORMAZIONI CHE DESIDERI.

Dettaglio immobile

Contratto Vendita
Rif 21628525
Prezzo € 149.000
Provincia Macerata
Comune Montecassiano
Indirizzo Localita Sant'Egidio S.n.c
Superficie 424 mq
Classe energetica G (DL 192/2005)
EPI 175 kwh/m2 anno
Condizioni abitabile
Ascensore no

Consistenze

Descrizione Superficie Sup. comm.
Principali
Immobile - piano terra 424 Mq 424 Mqc
Totale 424 Mqc

Richiedi maggiori informazioni

Autorizzazione al trattamento dei dati personali+
Dichiaro di aver letto l'informativa sulla privacy ed accetto le condizioni d'utilizzo del servizio.
Riempi il campo con il codice riportato nell'immagine*
Codice Captcha
Chiamaci Contattaci