Trilocale in vendita in via Roma

Camerino (Macerata)

Rif: 24507441
Condividi Linkedin Whatsapp Stampa
€ 65.000
Appartamento
55 Mq
3 Vani
Classe energetica F
1 bagno
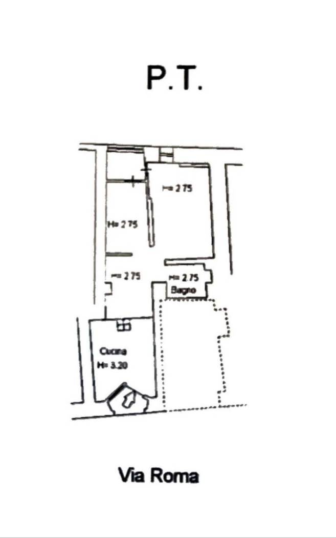
Proponiamo in vendita appartamento con ingresso indipendente, di 55 Mq circa, sito in Via Roma a Camerino. La soluzione e cosi composta: ingresso su cucina con sala da pranzo e salottino rialzato, un bagno con doccia, due camere da letto di cui una matrimoniale e l'altra singola dalla quale si puo accedere a un piccolo vano ad uso lavanderia e dove e presente un secondo ingresso (su Vicolo Sossanta). L'appartamento, ristrutturato nel 2013, e arredato con mobilio nuovo e su misura, illuminazione a fari led ed infissi con doppi vetri. No spese condominiali. La soluzione attualmente risulta inagibile a causa del sisma del 2016. Presente un progetto per la sua completa ristrutturazione. DA VEDERE!

Dettaglio immobile

Contratto Vendita
Rif 24507441
Prezzo € 65.000
Provincia Macerata
Comune Camerino
Indirizzo Via Roma
Superficie 55 mq
Vani 3
Bagni 1
Classe energetica F (DL 90/2013)
EPgl,nren 128,5 kwh/m2 anno
Riscaldamento autonomo
Condizioni da ristrutturare
Ascensore no

Consistenze

Descrizione Superficie Sup. comm.
Principali
Altro - piano terra 55 Mq 55 Mqc
Totale 55 Mqc

Richiedi maggiori informazioni

Autorizzazione al trattamento dei dati personali+
Dichiaro di aver letto l'informativa sulla privacy ed accetto le condizioni d'utilizzo del servizio.
Riempi il campo con il codice riportato nell'immagine*
Codice Captcha
Chiamaci Contattaci